fr
Se connecter
Se connecter

Votre recherche

Lyon (69007)

4 pièces - 154,40 m²

Local commercial de 154,4m2 modulable – Gerland

330 000 €
Ref : 6050
Découvrir le bien

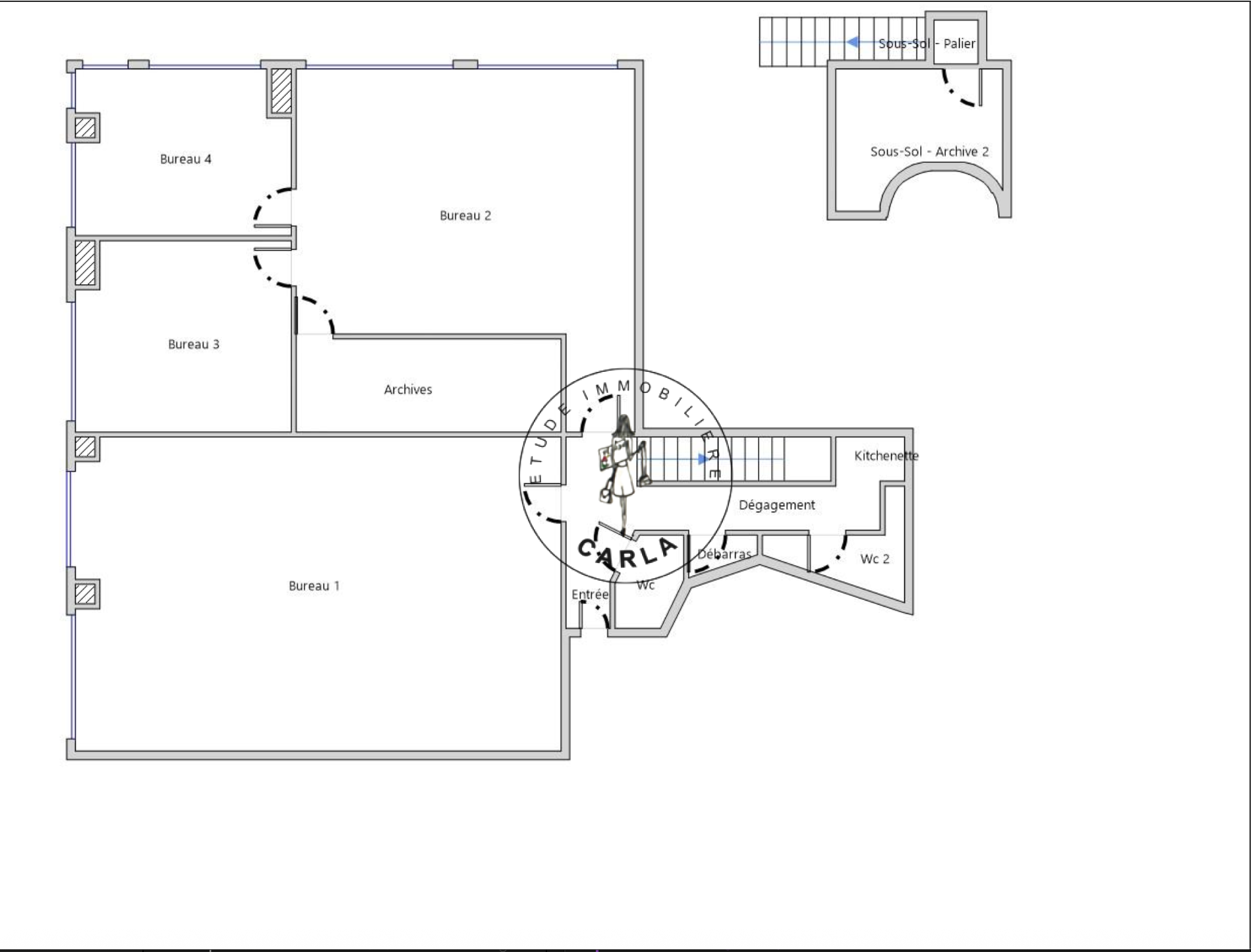
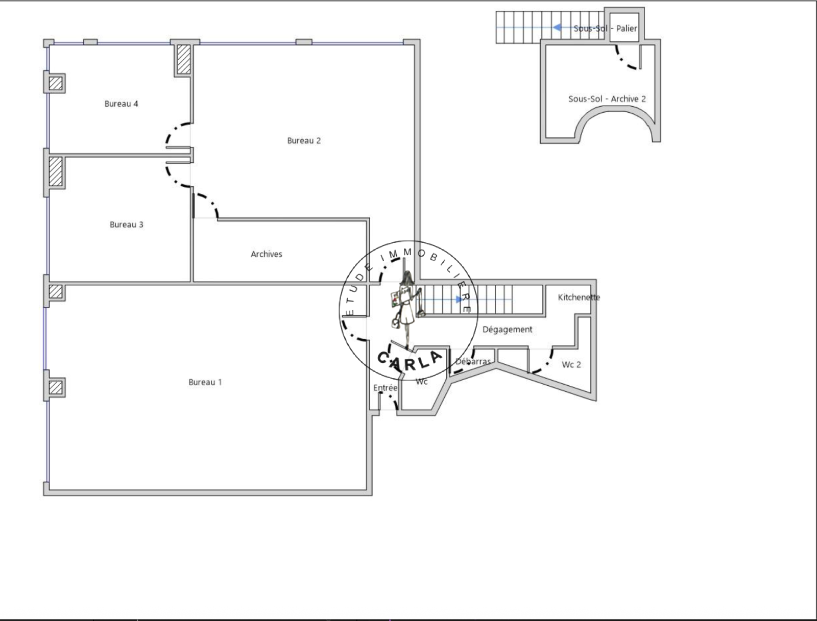
Plateau de bureaux modulable offrant une organisation fonctionnelle et efficace, composé de quatre espaces de travail distincts, dont un grand open space aux volumes confortables. Entrée indépendante, circulation fluide et espace archives dédié pour une gestion optimale de l’activité.
Les locaux disposent d’une kitchenette, de deux WC indépendants, d’un débarras et sont complétés par une surface d’archives en sous-sol, idéale pour le stockage.
Un ensemble professionnel structuré, parfaitement adapté aux professions libérales, cabinets, sociétés de services ou activités administratives recherchant des bureaux immédiatement exploitables.

Avis Carla : des locaux bien agencés, modulables et prêts à l’emploi, offrant un cadre de travail fonctionnel et adapté à une large typologie d’activités tertiaires.

TRAD_ZEPHYR_Caracteristique TRAD_ZEPHYR_Valeurs
Code postal 69007
Surface loi Carrez (m²) 154,40 m²
Nombre de pièces 4
Vue Sur rue
TRAD_ZEPHYR_Caracteristique TRAD_ZEPHYR_Valeurs
Cuisine Kitchenette
Type de cuisine SEMI-EQUIPEE
Mode de chauffage Electrique
Type de chauffage TRAD_TYPE_CHAUFF_CHAUDIERE
Format de chauffage Individuel
Interphone OUI
Terrasse NON
Exposition Sud-Ouest
Année de construction 1985
TRAD_ZEPHYR_Caracteristique TRAD_ZEPHYR_Valeurs
Copropriété OUI
Lot n° 24
nombre de lots 31
TRAD_ZEPHYR_Caracteristique TRAD_ZEPHYR_Valeurs
Prix de vente 330 000 €
Les honoraires d'agence seront intégralement à la charge du vendeur  
DPE GES
Contacter pour ce bien
L'agence
Téléphone 04 72 66 67 68
Adresse
159 GRANDE RUE 69600 Oullins

* Champ obligatoire

Les informations recueillies sur ce formulaire sont enregistrées dans un fichier informatisé par La Boite Immo agissant comme Sous-traitant du traitement pour la gestion de la clientèle/prospects de l'Agence / du Réseau qui reste Responsable du Traitement de vos Données personnelles. La base légale du traitement repose sur l'intérêt légitime de l'Agence / du Réseau. Elles sont conservées jusqu'à demande de suppression et sont destinées à l'Agence / au Réseau. Conformément à la loi « informatique et libertés », vous disposez des droits d’accès, de rectification, d’effacement, d’opposition, de limitation et de portabilité de vos données. Vous pouvez retirer votre consentement à tout moment en contactant directement l’Agence / Le Réseau. Consultez le site https://cnil.fr/fr pour plus d’informations sur vos droits. Si vous estimez, après avoir contacté l'Agence / le Réseau, que vos droits « Informatique et Libertés » ne sont pas respectés, vous pouvez adresser une réclamation à la CNIL. Nous vous informons de l’existence de la liste d'opposition au démarchage téléphonique « Bloctel », sur laquelle vous pouvez vous inscrire ici : https://www.bloctel.gouv.fr Dans le cadre de la protection des Données personnelles, nous vous invitons à ne pas inscrire de Données sensibles dans le champ de saisie libre.
Ce site est protégé par reCAPTCHA, les Politiques de Confidentialité et les Conditions d'Utilisation de Google s'appliquent.

Découvrir nos outils